Apartmán 5
450 € / mes.
+ energie
s DPH

POLOHA APARTMÁNU
-
TypApartmán
-
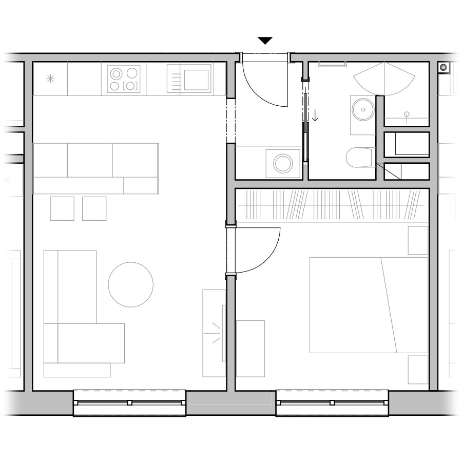
KódA 3.5
-
Poschodie3. poschodie
-
Plocha36,93 m²
-
Počet miestností2
-
StavVoľné
| Miestnosť | Plocha |
|---|---|
| Predsieň | 2,36 m2 |
| Obývacia miestnosť | 19,06 m2 |
| Spálňa | 11,63 m2 |
| Kúpeľňa | 3,53 m2 |