Skip to main content
Menu
Úvod
O Projekte
Apartmány
Kancelárie
Parkovanie
Kontakt
Mám záujem
Ing. Zoltán Kampmüller
+421 902 965 016
info@korzonz.sk
INFO@KORZONZ.SK
|
+421 902 965 016
Rákocziho 12, Nové Zámky
| Recepcia:
+421 902 965 018
(Pon - Pia: 8 - 16)
Úvod
O Projekte
Apartmány
Kancelárie
Parkovanie
Kontakt
MÁM ZÁUJEM
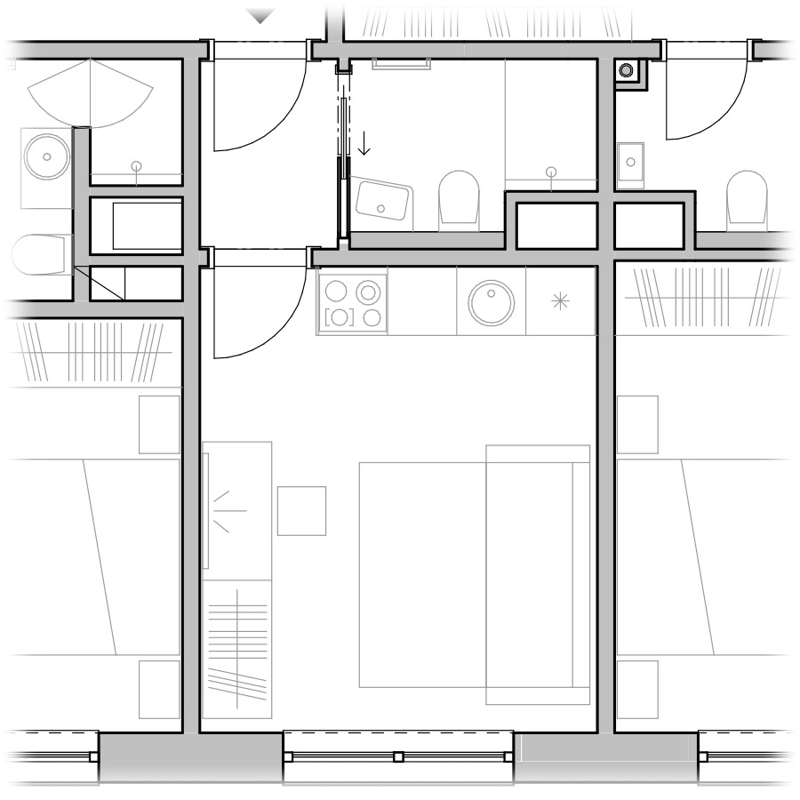
Apartmán 7
Späť
POLOHA APARTMÁNU
Typ
Apartmán
Kód
A 3.7
Poschodie
3. poschodie
Plocha
18,08
m²
Počet miestností
1
Stav
Obsadené
Miestnosť
Plocha
Predsieň
1,89 m
2
Obývacia miestnosť
13,12 m
2
Kúpeľňa
2,95 m
2
MÁM ZÁUJEM
Napíšte nám
Odoslaním formuláru súhlasíte so spracovaním osobných údajov podľa
Zásad ochrany osobných údajov
.
Zrušiť
Odoslať