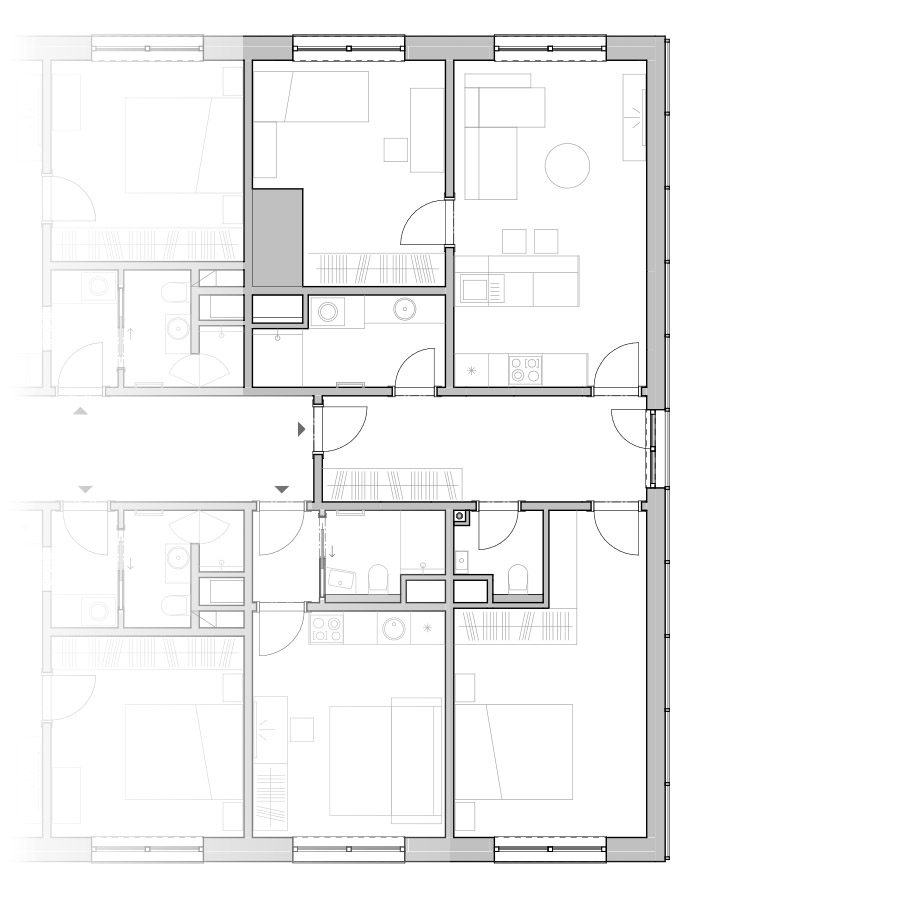
Apartmán 8

POLOHA APARTMÁNU
-
TypApartmán
-
KódA 3.8
-
Poschodie3. poschodie
-
Plocha64,3 m²
-
Počet miestností3
-
StavObsadené
| Miestnosť | Plocha |
|---|---|
| Predsieň | 10,02 m2 |
| Obývacia miestnosť | 18,81 m2 |
| Spálňa | 16,09 m2 |
| Pracovňa | 11,67 m2 |
| Kúpeľňa | 5,09 m2 |
| WC | 1,98 m2 |