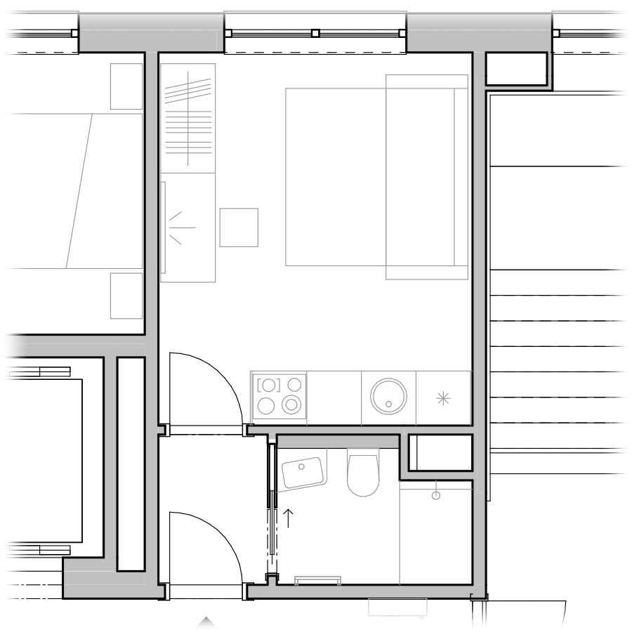
Apartmán 12

POLOHA APARTMÁNU
-
TypApartmán
-
KódA 3.12
-
Poschodie3. poschodie
-
Plocha18,17 m²
-
Počet miestností1
-
StavObsadené
| Miestnosť | Plocha |
|---|---|
| Predsieň | 1,98 m2 |
| Obývacia miestnosť | 13,28 m2 |
| Kúpeľňa | 2,95 m2 |