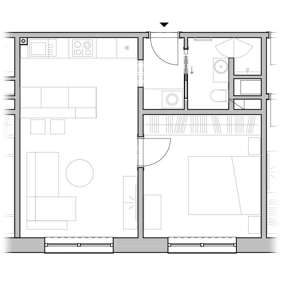
Apartmán 6

POLOHA APARTMÁNU
-
TypApartmán
-
KódA 4.6
-
Poschodie4. poschodie
-
Plocha36,93 m²
-
Počet miestností2
-
StavObsadené
| Miestnosť | Plocha |
|---|---|
| Predsieň | 2,36 m2 |
| Obývacia miestnosť | 19 m2 |
| Spálňa | 11,63 m2 |
| Kúpeľňa | 3,49 m2 |