Apartmán 3
450 € / mes.
+ energie
s DPH

POLOHA APARTMÁNU
-
TypApartmán
-
KódA 5.3
-
Poschodie5. poschodie
-
Plocha35,78 m²
-
Počet miestností2
-
StavVoľné
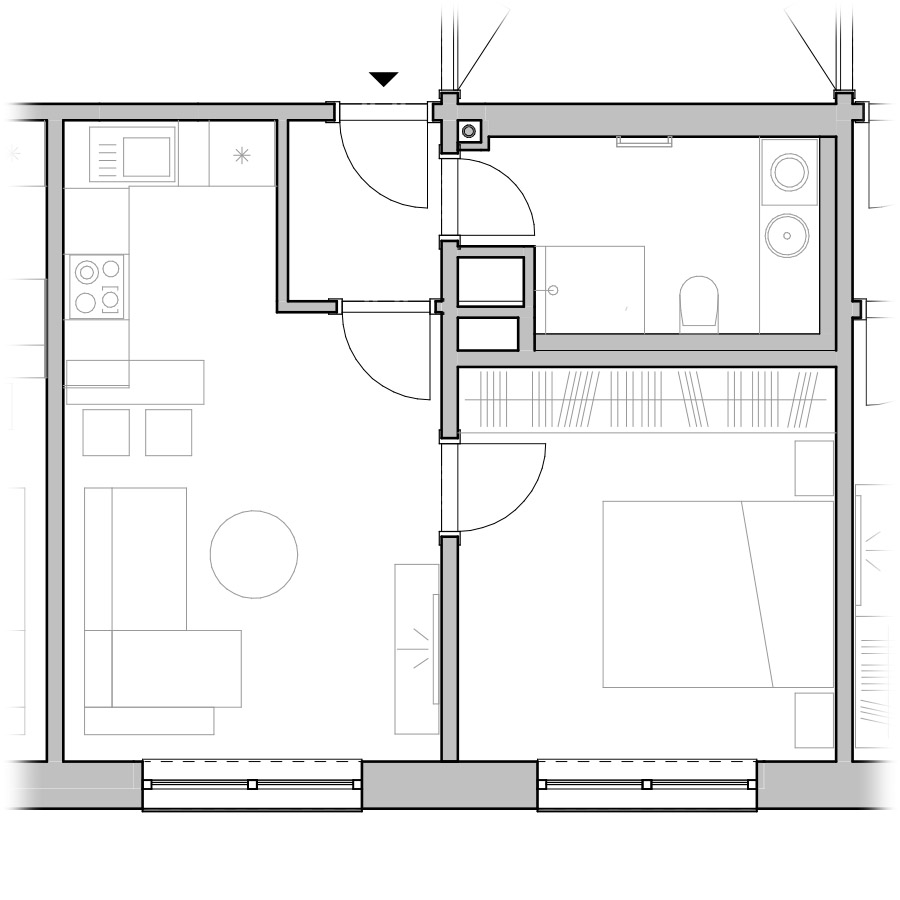
| Miestnosť | Plocha |
|---|---|
| Predsieň | 2,09 m2 |
| Obývacia miestnosť | 16,56 m2 |
| Spálňa | 11,63 m2 |
| Kúpeľňa | 5,34 m2 |