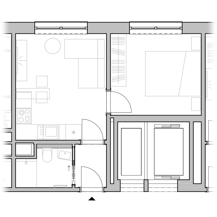
Apartmán 13

POLOHA APARTMÁNU
-
TypApartmán
-
KódA 5.13
-
Poschodie5. poschodie
-
Plocha28,28 m²
-
Počet miestností2
-
StavObsadené
| Miestnosť | Plocha |
|---|---|
| Predsieň | 1,98 m2 |
| Obývacia miestnosť | 13,12 m2 |
| Spálňa | 9,98 m2 |
| Kúpeľňa | 2,91 m2 |