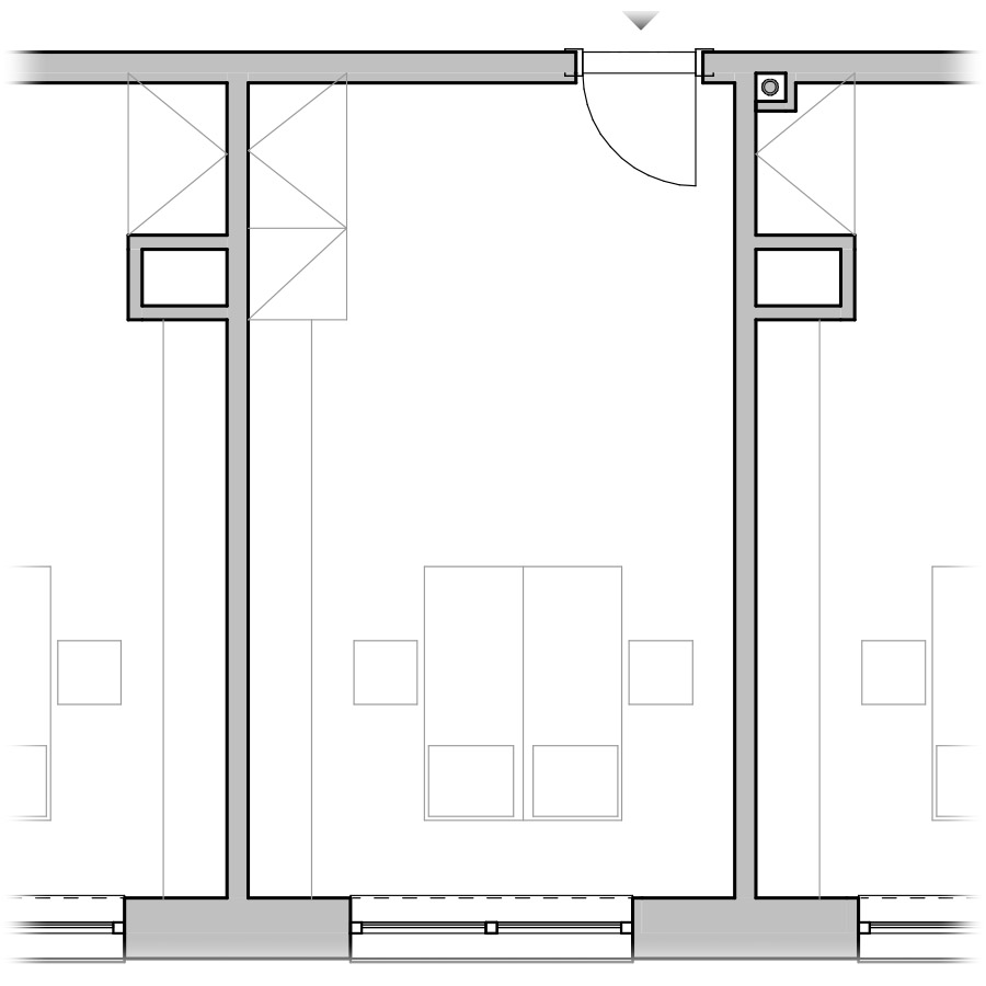
Kancelária 10
12 € / m2 / mes.
+ energie
bez DPH

POLOHA KANCELÁRIE
-
TypKancelária
-
KódK 2.10
-
Poschodie2. poschodie
-
Plocha19,89 m²
-
Počet miestností1
-
StavVoľné