Skip to main content
Menu
Úvod
O Projekte
Apartmány
Kancelárie
Parkovanie
Kontakt
Mám záujem
Ing. Zoltán Kampmüller
+421 902 965 016
info@korzonz.sk
INFO@KORZONZ.SK
|
+421 902 965 016
Rákocziho 12, Nové Zámky
| Pohotovosť:
+421 902 965 022
Úvod
O Projekte
Apartmány
Kancelárie
Parkovanie
Kontakt
MÁM ZÁUJEM
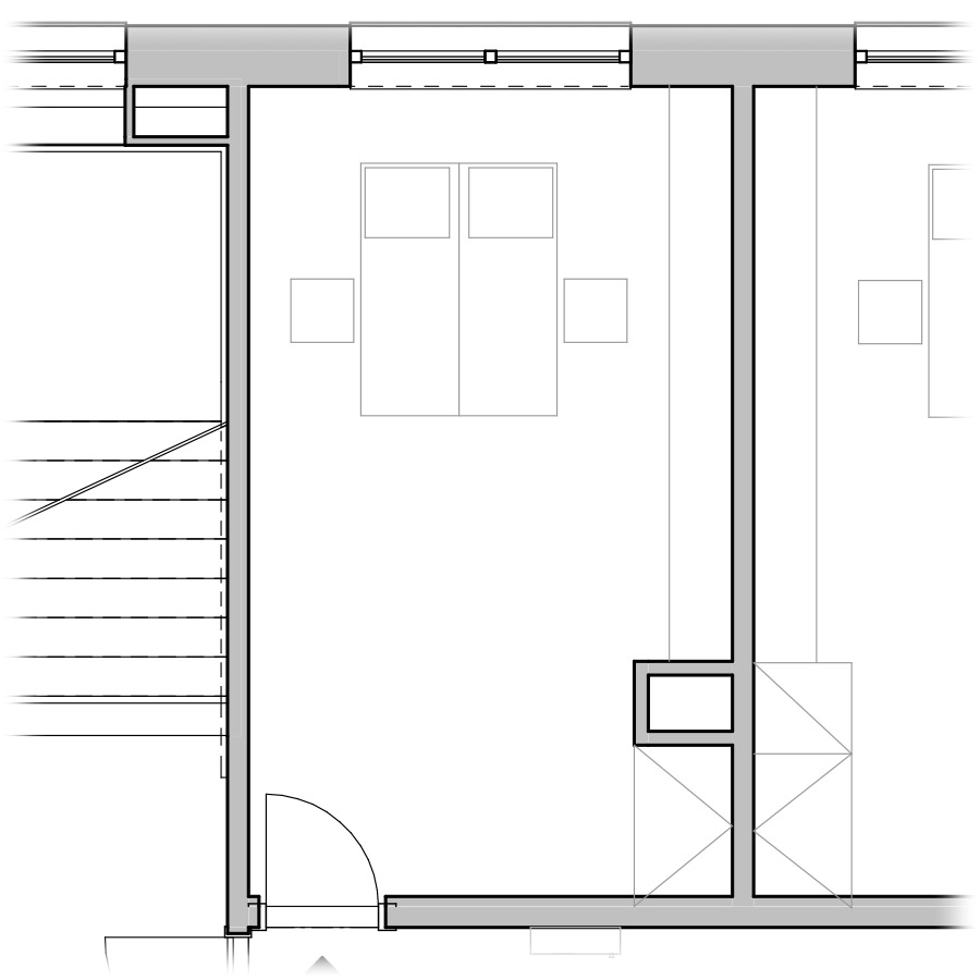
Kancelária 18
Späť
12
€ / m
2
/ mes.
+ energie
bez DPH
POLOHA KANCELÁRIE
Typ
Kancelária
Kód
K 2.18
Poschodie
2. poschodie
Plocha
19,5
m²
Počet miestností
1
Stav
Voľné
MÁM ZÁUJEM
Napíšte nám
Odoslaním formuláru súhlasíte so spracovaním osobných údajov podľa
Zásad ochrany osobných údajov
.
Zrušiť
Odoslať